25, rue du Doyen Brus
33170 Gradignan (France)
www.recer.fr
Extracteur de fumées résistant à 400°C pendant 2h

Photo non contractuelle.
CJTX-C-25/25-15
Vitesse : 570 tr/min
Intensité Max 220V : - A
Intensité Max 400V : 21 A
Puissance : 11 Kw
Débit : 34000 m³/h
Niveau sonore : 78 dB (A)
Poids : 419 Kg

Caractéristiques de Fabrication :
Ventilateur :

   · Structure en tôle acier galvanisé.
   · Turbine avec pales vers l'avant en tôle d'acier galvanisé.
   · Intègre un tendeur automatique de courroies.
   · Homologation selon la norme EN-12101-3-2002, avec certificat N° : 0370-CPD-0468.
   · Direction air sens linéaire.

Moteur :

   · Moteur classe F, avec roulements à billes, protection IP 55, à 1 ou 2 vitesses selon modèle.
   · Triphasé 230/400 V, 50 Hz (jusqu'à 5.5 CV) et 400/690 V, 50 Hz (puissances supérieures à 5.5 CV). .
   · Température maximum de l'air à transporter : Service S1 -20°C à + 120°C en continu, Service S2 400°C/2h.

Sur demande :

   · Extracteurs avec moteur 200°C/2h à 1 ou 2 vitesses.
   · Extracteurs avec sortie verticale.
     

Courbe de fonctionnement :

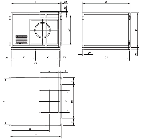
Dimensions :
Modèles A B B1 C C1 d d1 D1 D2
CJTX-C-7/7 700 480 - 730 695 10.5 9 354 470
CJTX-C-9/9 785 592 - 759 716 10.5 9 466 490
CJTX-C-10/10 860 618 - 825 762 10.5 9 492 520
CJTX-C-12/12 970 680 - 945 902 10.5 9 554 620
CJTX-C-15/15 1100 776 - 1100 1057 10.5 9 650 720
CJTX-C-18/18 1278 900 60 1250 1207 10.5 11 774 870
CJTX-C-20/20 1495 1080 60 1474 1431 13 11 954 1100
CJTX-C-22/22 1640 1180 60 1625 1582 13 11 1054 1250
CJTX-C-25/25 1800 1300 60 1825 1782 13 11 1174 1450
CJTX-C-30/28 2000 1525 60 2134 2091 13 11 1399 1760
Toutes les valeurs sont exprimées en mm
Suite du tableau ...
Modèles F G H I K L X X1 X2
CJTX-C-7/7 66 306 750 685 239 216 - - -
CJTX-C-9/9 89 368 835 714 305 270 - - -
CJTX-C-10/10 86.5 383.5 910 780 334 296 - - -
CJTX-C-12/12 81.5 423.5 1020 900 395 350 - - -
CJTX-C-15/15 83.5 457 1150 1055 483 411 - - -
CJTX-C-18/18 83.5 572.5 1328 1205 565 488 614.5 20 1229
CJTX-C-20/20 66 667.5 1555 1419 611 611 722.5 20 1545
CJTX-C-22/22 125.5 702 1700 1570 665 705 795.5 20 1591
CJTX-C-25/25 121 777 1860 1770 775 806 875.5 20 1751
CJTX-C-30/28 115.5 941.5 2060 2079 900 941 975.5 20 1951
Toutes les valeurs sont exprimées en mm

Livraison sur demande : impulsion verticale LG-0

Dimensions verticales ventilateur CJTX-C
Modèles A B B1 C C1 d d1 D1 D2
CJTX-C-7/7 700 480 - 730 695 10.5 9 354 470
CJTX-C-9/9 785 592 - 759 716 10.5 9 466 490
CJTX-C-10/10 860 618 - 825 762 10.5 9 492 520
CJTX-C-12/12 970 680 - 945 902 10.5 9 554 620
CJTX-C-15/15 1100 776 - 1100 1057 10.5 9 650 720
CJTX-C-18/18 1278 900 60 1250 1207 10.5 11 774 870
CJTX-C-20/20 1495 1080 60 1474 1431 13 11 954 1100
CJTX-C-22/22 1640 1180 60 1625 1582 13 11 1054 1250
CJTX-C-25/25 1800 1300 60 1825 1782 13 11 1174 1450
CJTX-C-30/28 2000 1525 60 2134 2091 13 11 1399 1760
Toutes les valeurs sont exprimées en mm
Suite du tableau ...
Modèles F G H I K L X X1 X2
CJTX-C-7/7 60 532 750 685 239 216 - - -
CJTX-C-9/9 43 607 835 714 305 270 - - -
CJTX-C-10/10 28.5 683.5 910 780 334 296 - - -
CJTX-C-12/12 38.5 756.5 1020 900 395 350 - - -
CJTX-C-15/15 41 853.5 1150 1055 483 411 - - -
CJTX-C-18/18 41 993 1328 1205 565 488 614.5 20 1229
CJTX-C-20/20 29.5 1160 1555 1419 611 611 722.5 20 1545
CJTX-C-22/22 47 1240.5 1700 1570 665 705 795.5 20 1591
CJTX-C-25/25 59 1338 1860 1770 775 806 875.5 20 1751
CJTX-C-30/28 56.5 1473 2060 2079 900 941 975.5 20 1951
Toutes les valeurs sont exprimées en mm